Small Living Room Layout: How to Fit a Couch and TV in a Tiny Space
My living room is small, so small it’s nearly nonexistent. It’s a 50 sq ft nook that Toronto developers had the nerve to call a living room.
Hello! If you’re new here, welcome. I’m an interior decorator who just moved into a tiny 500 sq ft condo, and I’m embarking on the exciting journey of decorating my own space. I thought this would be the perfect opportunity to start a new series on my interior design blog, documenting the process of space planning and decorating my condo.
So, let me introduce you to the space—the tiny living room, that is.


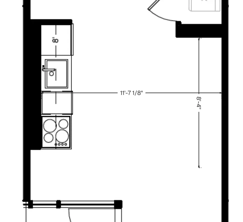
Here’s the floor plan of my living room. I’m honestly shocked that the developers could even get away with calling this area a living room. As you can see, from the kitchen to the living room wall measures 11’7″, and the approximate width of the living room is 8’4″. My so-called condo living room is really more of a nook, if not just dead space disguised as a living room.
Now, as a designer—someone who gets paid to create functional floor plans and thoughtful designs for a living—I saw this living room as a challenge. One I was determined to conquer. It forced me to rethink design, function, what was truly important to me, and how I actually live day to day.
You see, it’s easy to design a space when it’s large. It’s almost foolproof. When you have ample space, you can get away with oversized sofas, chunky chairs, and numerous furniture pieces without much consequence.
When designing a small space? Well, that is when every inch matters.
TV Placement in a Small Living Room
Let’s talk about the function of a living space. For most people, that means setting it up for TV watching. In a small living room, this can be extremely challenging—especially with a floor plan like mine.
When the developers first showed me their suggested furniture layout for this condo, I laughed. Here it is for reference:

At first glance—and to an untrained eye—you might think, “Okay, great. A couch facing a wall with the TV. Nothing wrong with that.”
In this tiny, nearly nonexistent living space…which isn’t even 12 feet wide?
Nope.
Let’s do some quick designer math.
From the kitchen, you need at least 32 inches of clearance between the kitchen and an island or any other piece of furniture—and keep in mind 32″ of clearance is already pushing it.
Then consider the depth of a standard sofa, which is typically 36–39 inches.
Now look at how much distance would be left between the sofa and the TV wall. Based on my quick calculations from this floor plan, this layout would leave me with roughly 42 inches from the sofa to the TV wall.
First, the sofa would obstruct the flow of the condo. Second, it would sit so close to the TV wall that it would feel uncomfortable.
According to TV viewing distance guidelines, at 42 inches away you could realistically only accommodate a TV around 24–32 inches.
And don’t even mention adding an ottoman or coffee table. There simply wouldn’t be room.
So, this layout that the developers suggested is just a straight-up NO, and laughable to me.
So, How Do You Place a TV in a Small Living Room?
My designer brain knew that a traditional setup—a sofa facing a wall with a TV—would simply not work. If you look at the floor plan, you might even be stumped as to how else I could pull off a functional living room design with a TV.
This is where you have to get a little creative—and where my background knowledge of unique products on the market really comes into play.
In this space, there was only one functional area to place a couch (we’ll get to my tiny sofa soon—keep reading). The couch could only go against the wall, not float across from it. Like this:

This placement makes sense. It maintains proper flow from the kitchen, keeps the walkway clear, and fills the niche appropriately without overwhelming it.
So now you’re probably wondering: Okay… but where does the TV go? The kitchen is across from the sofa.
Exactly. And this is where I get creative. In a case like this, I needed to think about a mobile TV.
Introduce a product from Samsung: The Sero.

And, nope, this is not an ad from Samsung (I wish, though!).
This Tv is on a movable stand, allowing it to be repositioned throughout the space. It can sit delicately off to the side across from the sofa—and it can easily be moved to other rooms, like the bedroom, if I decide to watch TV there instead.
Here is the idea:

My solution was not to build this room entirely around TV watching—because, frankly, that approach wouldn’t work here. And truthfully, I don’t watch a lot of TV or movies anyway.
With a product like this, small condo living becomes far more flexible. On a daily basis, I don’t need the TV fixed in one dominant position. Instead, the living room becomes a place for relaxing, reading, writing, and enjoying a more design-forward, decorative atmosphere.
Problem one—TV viewing in a small living room—solved.
Now, let’s talk about choosing a small couch for a small space.
Small Couch For a Small Living Room
When mapping out and planning the appropriate couch size for my small living room, my designer brain immediately recognized that the right piece was going to be much smaller than what’s typically available on the market.
Once I factored in space for a small end table beside the couch, I determined that the ideal sofa length would be roughly 70 inches—which, in the couch world, is quite hard to find.
I went back and forth, searching for couches marketed as “condo-sized.” However, even with those scaled-down options, I couldn’t find one that truly made sense for the space—not in terms of size, style, or comfort.
That’s when I decided to get a little creative, again, and started looking at chaises instead.
Introduce: The Chaise Lounge

You can think of a chaise as a sofa with one arm—or an oversized chair with an extended seat. And here’s the interesting part: most chaises are typically around 70 inches long.
Perfect. Exactly what I needed.
Even better, when I sit down, I can fully stretch out. It functions more like a daybed than a traditional sofa—which, let’s be honest, is how most of us actually use our couches. Rarely are we sitting upright with perfect posture.
A chaise simply made more sense for how I live. Here is the one I went with:

The one I found is the perfect size and comfortably fits my entire body—definitely a win in my books.
So, if you’re searching for a small couch for your small living room, you might want to consider shopping for a chaise instead. It could be the unexpected solution that makes your space both functional and comfortable.
So, here is how my living room design is looking so far.

If you want to keep up with the progress of my small living room; subscribe to my newsletter to see how my condo design turns out.
How to Arrange Living Room Furniture in a Small Space
I’ve taken you through a mini case study of my own tiny living room in hopes of inspiring your own space—or at least giving you a peek into a designer’s thought process when finding the right products and layouts for small living areas.
Of course, your living room is likely different from mine, so instead of a one-size-fits-all solution, here’s my designer framework for planning furniture in a small space:
Step 1: Clarify Your Priorities

Before you even think about buying furniture, ask yourself: what do you truly want from this space?
For many, the living room is centered around TV watching—but if you, like me, don’t watch TV daily, your design priorities may be completely different.
Consider these possibilities:

- Conversational layout: You want the space to encourage conversation and host guests comfortably. Here, seating capacity may be your top priority. For more on Living Room Layouts, click here.
- Reading nook or relaxation: If you love curling up with a book or spending quiet time, prioritize comfortable seating, good lighting, and a cozy corner for yourself (and maybe your cat!).
- Storage solutions: Perhaps your living room doubles as a multi-functional space, and adding storage is more important than maximizing seating.
- Dining or multifunctional use: Some small living rooms also function as dining areas. You might need a coffee table that doubles as a dining surface or ottomans that provide extra seating and storage.
Step one is simple: get crystal clear on the primary purpose of your space. Everything else flows from that.
Step 2: Plan Your Floor Layout Before Buying Anything

This is where many people go wrong. As an interior designer, I often see people start buying furniture first—and then realize the pieces don’t fit.
Furniture is expensive. You don’t want to end up with pieces that are too big, too small, or impossible to return.
Instead, start with a floor plan:
- Measure your space carefully. Include doors, windows, and any architectural features.
- Use a free online floor planner to map out your living room. This allows you to experiment without commitment.
- If possible, create a 3D model of your layout. This gives you a realistic sense of scale and spacing.
Pay attention to clearances and circulation. Make sure there’s enough room to move comfortably between furniture pieces. A cramped room can feel cluttered even if you’ve chosen beautiful pieces.
Step 3: Consider Scale, Proportion, and Flow

In small spaces, scale is everything:
- Choose furniture that fits the room’s dimensions. Large, bulky sofas can overwhelm a tiny living room.
- Think in layers. Mix different heights and sizes—like a low-profile sofa with a taller bookshelf—to create visual interest without taking up too much floor space.
- Use multi-functional furniture. Ottomans with storage, foldable tables, or wall-mounted shelves can make a small space far more practical.
Now, It’s Time To Decorate…
Once the structure of your space is set, it’s time to make it feel like your living room:
- Rugs, throw pillows, and lighting can create a sense of warmth and intimacy.
- Mirrors or light-colored walls can make a small room feel larger.
- Personal touches—art, plants, and sentimental items—bring character without overcrowding.
And, of course, you can always just skip all these steps and hire me, and I would be happy to solve the issues of your small living room.
Click Here To Shop My Favourite Home Goods
Let’s design your space together, virtually.







